Enviar imóvel a amigo
Saber mais »
captcha
Campos obrigatórios *

Terreno em Anta – Espinho | 2.538m² com projeto aprovado para moradia T3+1

147 500 €
Baixa de preço
Seguir imóvel Receba um alerta quando existir uma Baixa de Preço
Nome
Insira o código da imagem
captcha
Código
350 m²
2538 m²
Terreno em Anta – Espinho | 2.538m² com projeto aprovado para moradia T3+1

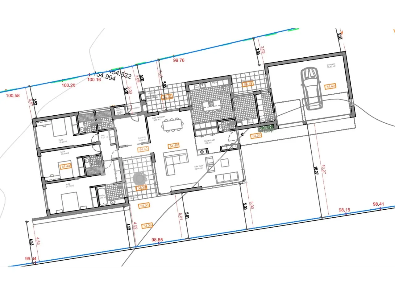
Apresentamos um terreno urbano com 2.538m² em Anta, Espinho, localizado numa zona residencial tranquila e ideal para construir a sua moradia de sonho.
O terreno dispõe de projeto aprovado para uma moradia térrea T3+1, oferecendo conforto, espaço e privacidade. A casa inclui:
- 3 suítes espaçosas (16, 16 e 24m²)
- Sala ampla de 59m²
- Escritório com WC privativo
- Cozinha moderna com ilha de 20m²
- Lavandaria, arrumos e pátio com zona de churrasqueira
A garagem de 54m² tem capacidade para 3 carros, garantindo segurança e comodidade. A área de implantação é de 350m², permitindo um aproveitamento eficiente do terreno.
A localização estratégica combina tranquilidade residencial com conveniência, estando a apenas 3 km do centro de Espinho e com fácil acesso por estrada.

- 2.538m² de terreno urbano
- Projeto aprovado para moradia T3+1
- 20 metros de frente
- Zona residencial tranquila
- Apenas 3 km do centro de Espinho

Uma oportunidade única para construir a casa dos seus sonhos em Espinho, num terreno com grande potencial e excelente localização.
Anta, Espinho - Aveiro


Impostos - Prédio Urbano:
- IMT: 10.985,00€
- IS: 1.352,00€


- A nossa imobiliária tem mais de 50 terrenos disponíveis para venda pelo que pode consultá-los no nosso site portaaolado.pt


Contacte-nos e marque já a sua visita!

Porta ao Lado Imobiliária
Tornamos o seu lar de sonho, realidade.



Não é o que procura? Temos todo o gosto em ajudar a encontrar o imóvel certo para si!
Contacte a nossa equipa de profissionais que o ajudará a encontrar o que procura.

Sabe o que é preciso para vender o seu imóvel? E para comprar?
Tem alguma dúvida?
Estamos ao seu dispor para responder as suas questões.
Tipo de imóvel Terreno Urbano
Tipologia 0 Quartos
Objetivo Venda
Estado N/D
Preço 147 500 €
Ano Construção N/D
País Portugal
Distrito Aveiro
Concelho Espinho
Freguesia Anta e Guetim
Zona N/D
Maria Leite
Maria Leite
Pretendo ser contactado
Data
Hora
Nome
Contacto
Mensagem
captcha
Código

Simulador de Crédito
Simulador de IMT
Valor do imóvel*
Montante de Empréstimo*
A sua idade*
Prazo empréstimo *
Prestação Mensal 0.00
O valor da prestação apresentada não inclui Seguro de Vida e Seguro Lar.
Indexante 0.000%
TAEG 0.000%
Spread 0.000%
Prazo 0 anos
TAN 0.000%
Simular Inserir aqui o disclaimer. Isto é apenas uma simulação. Esta simulação de crédito não tem fins lucrativos.
Local do imóvel*
Finalidade*
Valor do imóvel*
Valores complementares*
IMT 0.00
Imposto de Selo (0,8%) 0.00
Valores complementares 0.00
Total a pagar 0.00
Mais informações Simular Inserir aqui o disclaimer. Isto é apenas uma simulação. Esta simulação de crédito não tem fins lucrativos. Dados de Intermediação de Crédito - (Intermediário de Crédito nº )
Características Gerais
Gerais
  •  
Divisões
Divisões Área Pavimento Paredes Tectos Observações
 
Meio Envolvente
  •  
Facilidades
  •  
Domótica
  •  
Energias Renováveis
  •  
Localização do Imóvel
Estamos disponíveis para o ajudar Pretendo ser contactado
Data
Hora
Nome
Contacto
Mensagem
captcha
Código
O que é a pesquisa responsável
Esta pesquisa permite obter resultados mais ajustados à sua disponibilidade financeira.